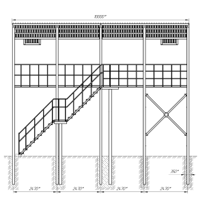
Эстакада для досмотра кузова автотранспорта ЦСБД.910.00.000 в пунктах контроля – это специальное сооружение, представляющее собой платформу на высоте, предназначенную для осмотра верхней части грузовых автомобилей, фургонов, и других транспортных средств.
Особенности эстакады:
- Расположение: Устанавливается на въезде или выезде из контролируемой зоны (например, границы, порта, военной базы). Обеспечивает удобный доступ сотрудников контролирующих органов к верхней части кузова для визуального осмотра и проведения необходимых проверок.
- Прочность: Выдерживает вес сотрудников и досмотрового оборудования.
- Ограждения и средства безопасности: Высокие бортики, перила, освещение, противоскользящее покрытие для обеспечения безопасности сотрудников, проводящих осмотр.
- Освещение: Часто оборудуется прожекторами или другим ярким освещением для работы в темное время суток.
- Дополнительное оборудование: Может включать лестницы, площадки для размещения оборудования, системы видеонаблюдения.
Назначение эстакады:
- Контроль грузов: Проверка соответствия заявленного содержимого фактически перевозимому.
- Таможенные операции: Осмотр грузов для целей таможенного оформления.
- Обеспечение безопасности: Предотвращение перевозки взрывчатых веществ, оружия, наркотиков и других опасных грузов.
Применение эстакады:
- Автоматизированные КПП «АТКПП»
- Таможенные посты
- Пограничные пункты пропуска
- Контрольно-пропускные пункты на охраняемых объектах
- Логистические центры
Для получения проектных решений в формате «.dwg» направьте запрос на электронную почту info@cssystems.ru



