Досмотровая эстакада железнодорожная ЦСБД.950.24.000 представляет собой площадку с перилами на опорных колоннах с лестничными маршами и навесом для размещения на пунктах досмотра подвижного ж/д состава.
Материал: сталь с полимерным покрытием.
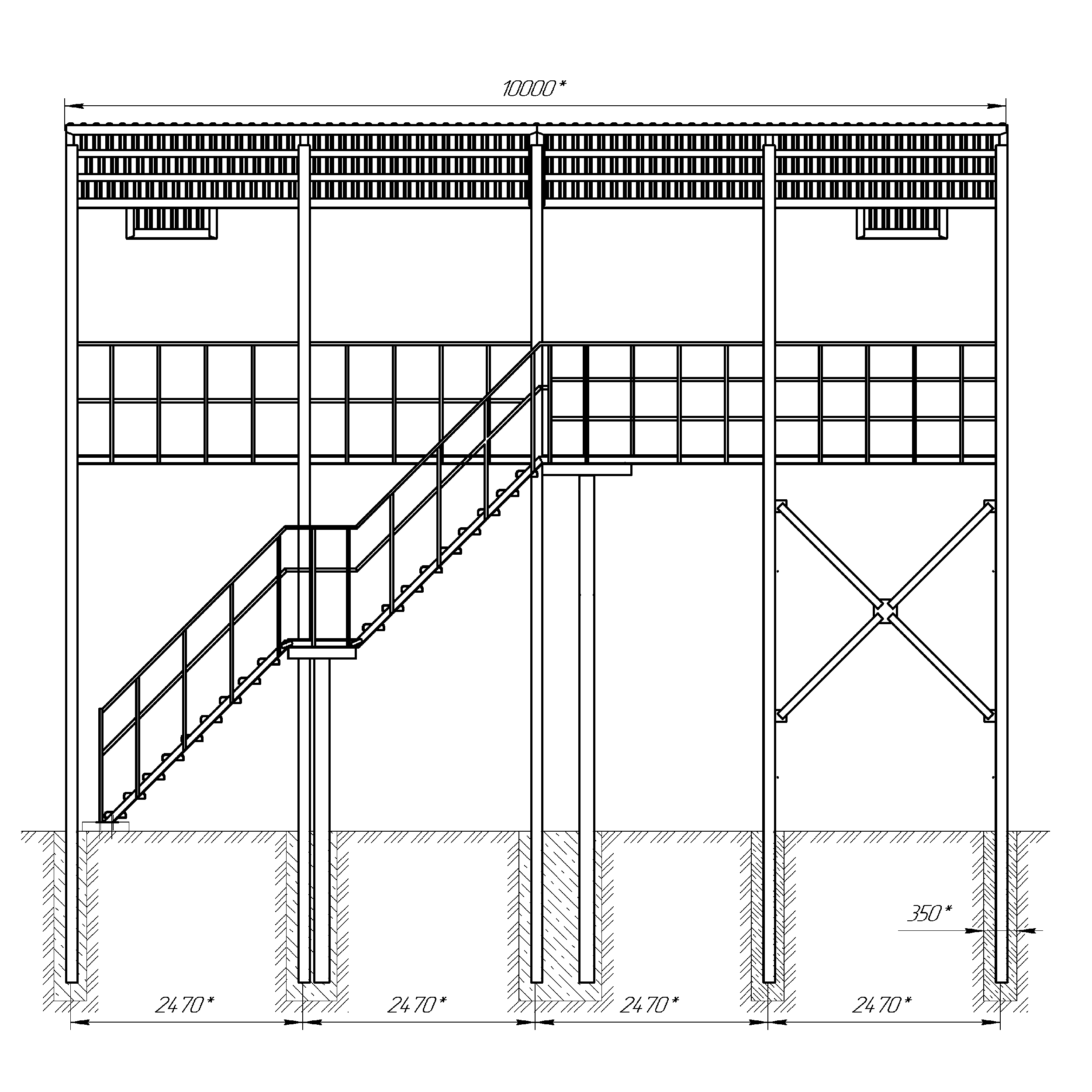
Характеристики эстакады досмотровой железнорожной ЦСБД.950.24.000:
- Длина площадки: 9880 мм.
- Высота площадки: 3800 мм.
- Ширина площадки: 1300 мм.
- Ширина балконов: 1110 мм
- Ширина лестничного пролета: 1300 мм
- Расстояние от досмотровой площадки до оси рельсового пути: 2205 мм.
- Общая длина конструкции (по основанию): 10000 мм.
- Общая высота эстакады с учетом навеса: 7300 мм
Особенности:
- позволяет проводить комплексный досмотр грузов железнодорожных вагонов, проверяя их соответствие стандартам безопасности;
- предоставляет возможность проведения различных видов досмотра с использованием дополнительного специализированного оборудования (системы видеонаблюдения и т. д.);
- обладает высокой прочностью и выдерживает вес сотрудников с досмотровым оборудованием;
- обеспечивает удобство досмотра железнодорожного состава в темное время суток посредством размещения осветительных приборов;
- навес эстакады позволяет осуществлять досмотр груза в сложных погодных условиях;
- обеспечивает безопасность работы сотрудников благодаря наличию высоких перил, противоскользящего покрытия и освещения.
Назначение:
- обеспечение безопасности на пункте досмотра железнодорожного состава;
- предотвращение несанкционированного провоза запрещённых предметов, включая оружие, взрывчатые вещества и другие опасные предметы;
- обнаружение скрытых отсеков, двойных полов, незаконных грузов, спрятанных в вагоне;
- контроль перевозки грузов соответствия заявленного и действительного груза;
- минимизация рисков террористических актов и других противоправных действий.
Срок службы: не менее 15 лет.
Для получения проектных решений в формате «.dwg» направьте запрос на электронную почту info@cssystems.ru




